GEALAN-LINEAR®

El diseño se une a la función

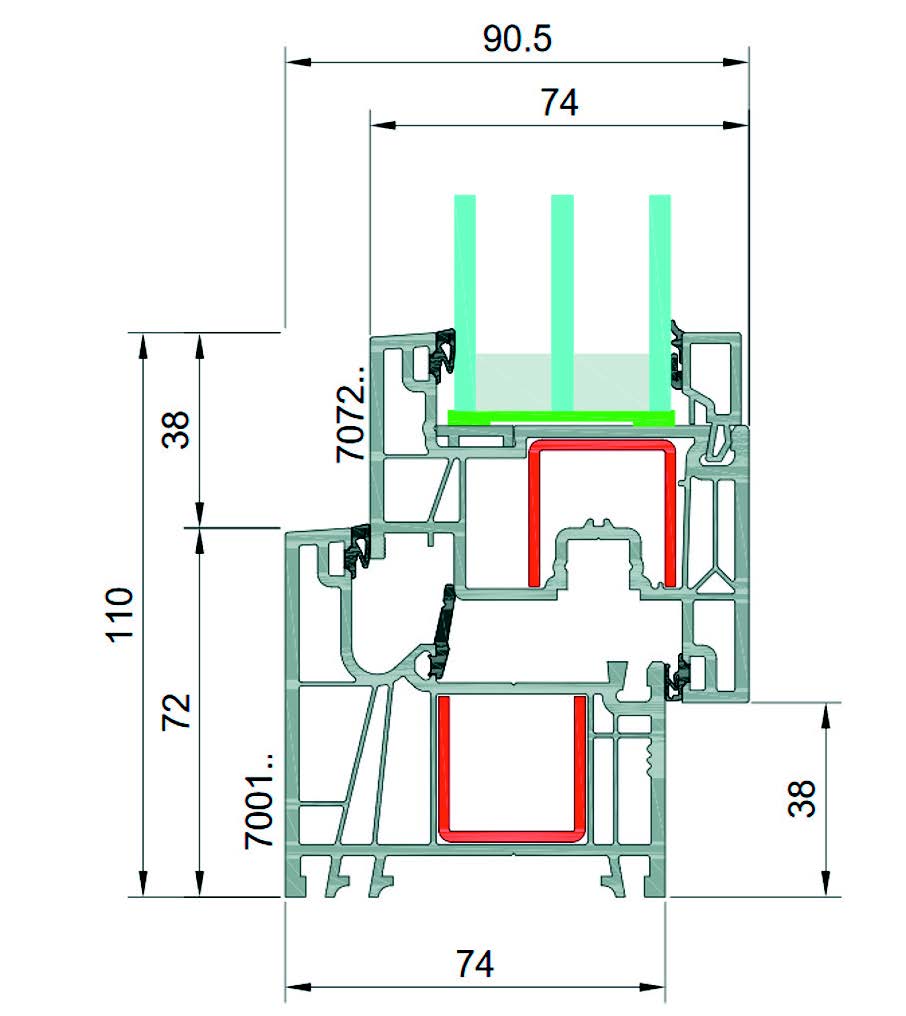
EVOLUCIÓN EN 74 MM DE PROFUNDIDAD DE PERFIL

GEALAN-LINEAR®

GEALAN presta una especial atención al equilibrio técnico, económico y ecológico de los sistemas. Por eso, el desarrollo del sistema GEALAN-LINEAR® está orientado a cubrir una amplia variedad de necesidades.

La tecnología de 74 mm, el último desarrollo en el segmento de 70 mm, asegura una alta estabilidad con modernos vidrios funcionales y, gracias al diseño multicámara, proporciona más seguridad, aislamiento acústico y térmico. La universalidad del sistema culmina con el diseño rectilíneo, siguiendo así la tendencia minimalista de la arquitectura moderna.

GEALAN-LINEAR es un sistema de perfiles para ventanas de PVC con 74 mm de profundidad ideal tanto para obra nueva como para renovación. Su alta eficiencia técnica gracias a su geometría interior y a su diseño rectilíneo y minimalista le convierten en LA VENTANA PERFECTA.

Líneas rectas

El sistema está orientado a un diseño de formas rectas, como el que actualmente marca las pautas arquitectónicas. Un sistema completo que incluye ventanas, puertas y correderas. Adecuada para nueva construcción o para la renovación.

Triple Junta

La triple junta permiten una perfecta estanqueidad al agua, una magnífica permeabilidad al aire, y una gran resistencia al viento.

6 cámaras

El interior de los perfiles de hoja y marco están construidos de manera que la ventana ofrezca el mejor rendimiento y eficiencia gracias a las 6 cámaras de aislamiento térmico, alcanzando un valor Uf = 1,0 W/(m2K) y certificado como elemento idóneo para viviendas construidas bajo el estándar PASSIVHAUS.

Más luz

El reducido tamaño de la perfilería permite la entrada de más luz. El diseño y aspecto estilizado en los marcos y en las hojas ayudan a que entre más luz al interior de los edificios.

  • Resistencia a la carga de viento: C5
  • Permeabilidad al Aire: Clase 4
  • Estanqueidad al Agua: 9A
  • Térmico (Valor Uf): 1,0 W/m2K

 

Decoraciones - colores estandard

RealWood – acabado de madera

Colores fuera del estándar: Láminas acabado madera

Colores fuera del estándar: Láminas acabado madera

Colores fuera del estándar: Acabado color liso

Colores fuera del estándar: Acabado efecto metalizado

Colores fuera del estándar: Acabado color mate